EPOCH
エポック
Office @ Kamiōsaki, Tokyo
Design: Yu Yamada, Mako Shimanuki, HoLing Cheng /SNARK Inc.
Construction: Koushou Inc.
Total area: 395.45㎡
Completion: Jul. 2025
Photo: Ippei Shinzawa









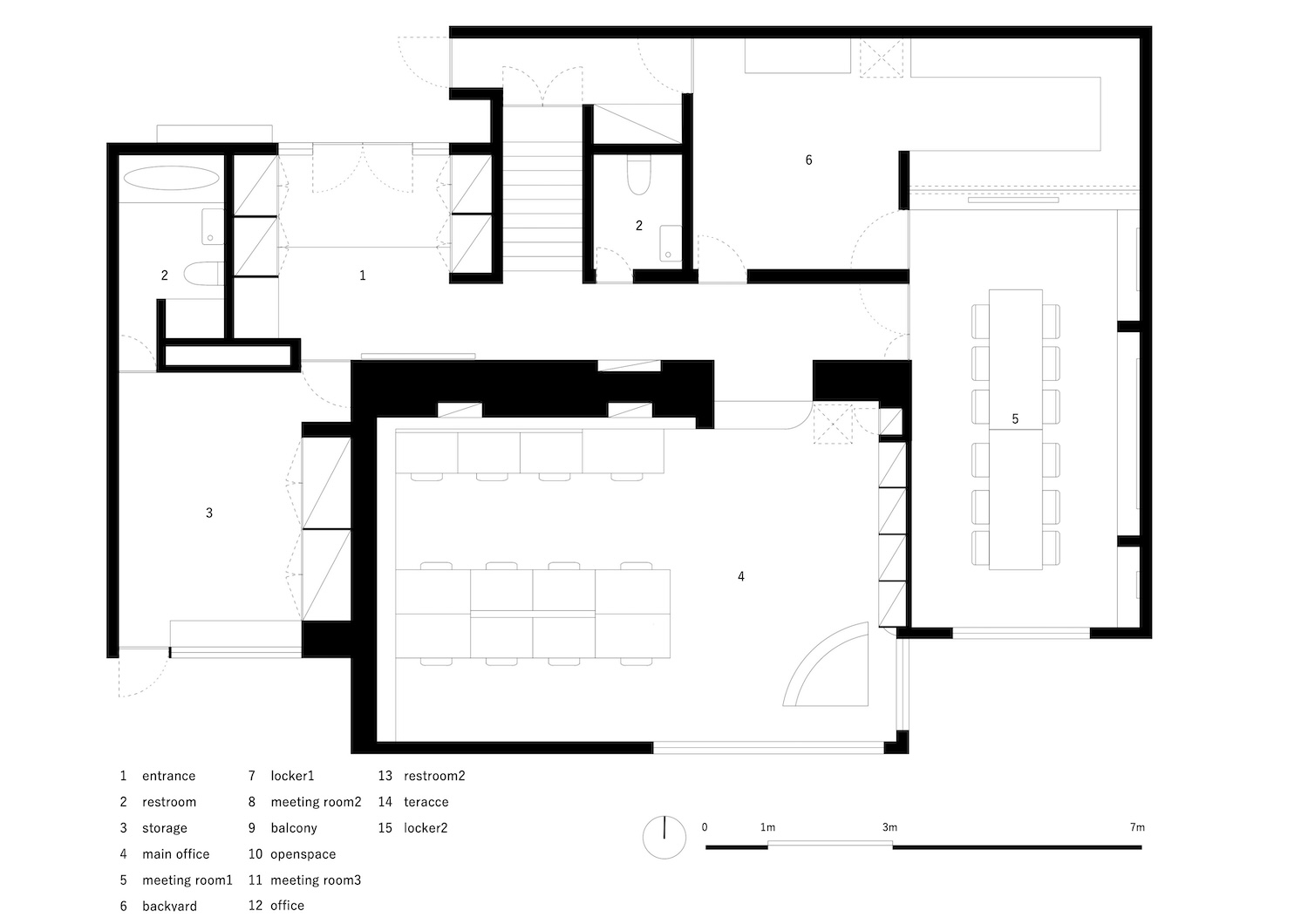
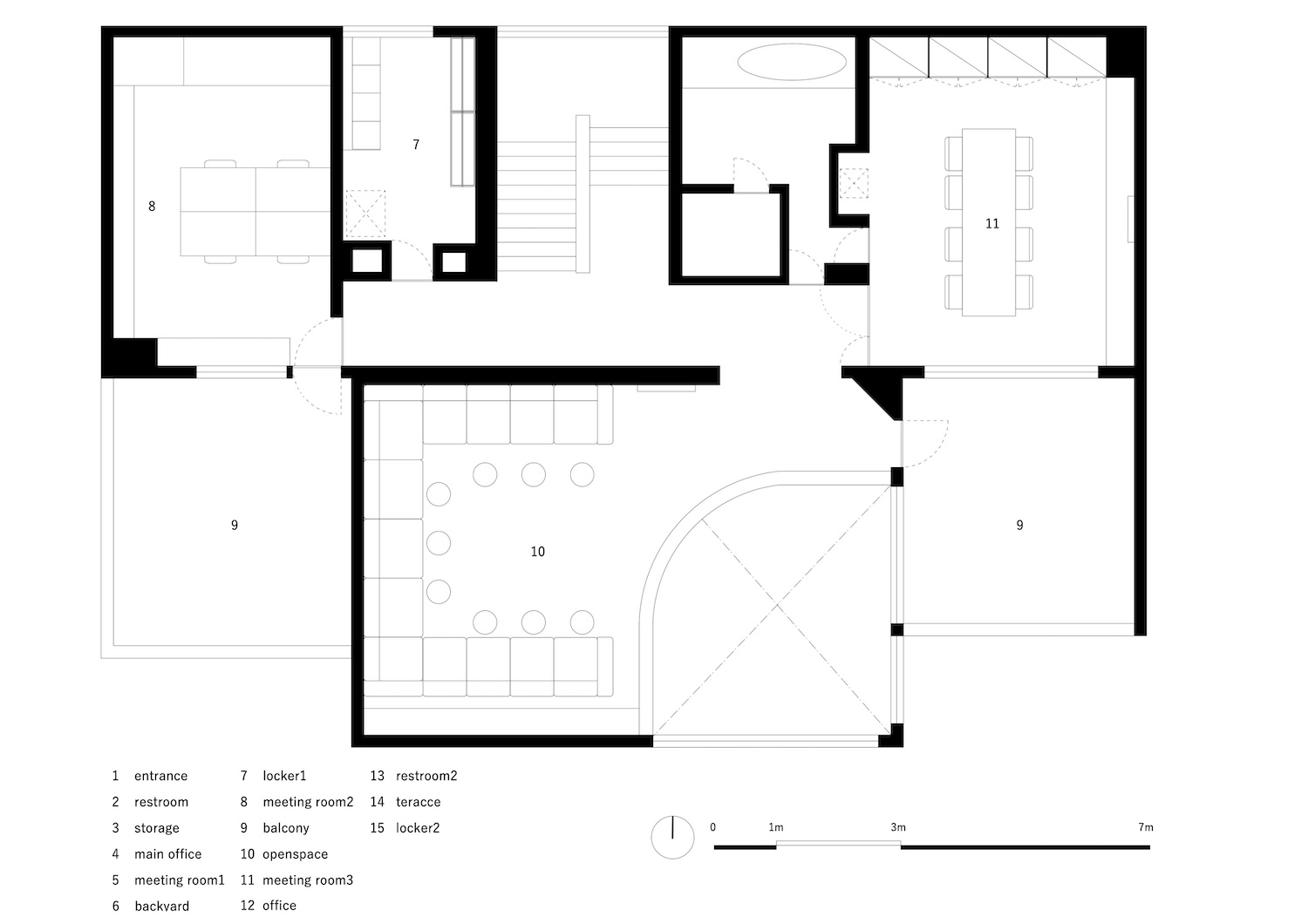
オフィスの移転プロジェクトとして、緑に包まれた環境の中で、心地よい自然光を大きな窓から室内へ取り込み、スタッフ一人ひとりがその日の気分や業務内容に応じて場所を選びながら働けるオフィスを計画した。執務室は既存家具と調和するベージュを基調とし、穏やかで落ち着きのある空間としている。一方、会議室やオープンスペースはグレーを基調とし、集中や対話に適した、適度な緊張感を持つ空間として構成した。また、会社で所有するアートの中から空間に合うものを選定し、各所に配置することで、視線の抜けや奥行きを生み出している。 異なるトーンを持たせながらも、素材感や光のバランスを丁寧に調整することで、全体として人が自然体で過ごせる環境となるよう配慮した。
Set within a lush, green environment, this office relocation project leverages expansive windows to integrate natural light into the workspace. The design facilitates a flexible environment where staff can choose their setting based on the day’s tasks or their personal mindset. While the main work areas utilize a beige-based palette to harmonize with existing furniture and foster a sense of calm, the meeting and open spaces transition to gray tones, creating a focused atmosphere with a productive sense of clarity. The strategic placement of the company’s art collection further enhances the interior, adding visual depth and clear sightlines throughout. By meticulously balancing material textures and lighting, the office achieves a cohesive, natural environment that feels both professional and inviting.

