Takano Sake Shop & TARTANS CAKE STAND
高野酒店 & タータンズケーキスタンド
Sake shop & Cake stand @ Annaka, Gunma
Design: Sunao Koase, Shota Kaneko / SNARK Inc.
Client: Takano Shoten
Construction: Shibusawa Techno Construction
Planting: AYANAS
Steel Product: gambit
Floor area: 110.41㎡
Completion: Jun. 2022
Photo: Ippei Shinzawa

















群馬県安中市にある酒屋のリニューアルである。
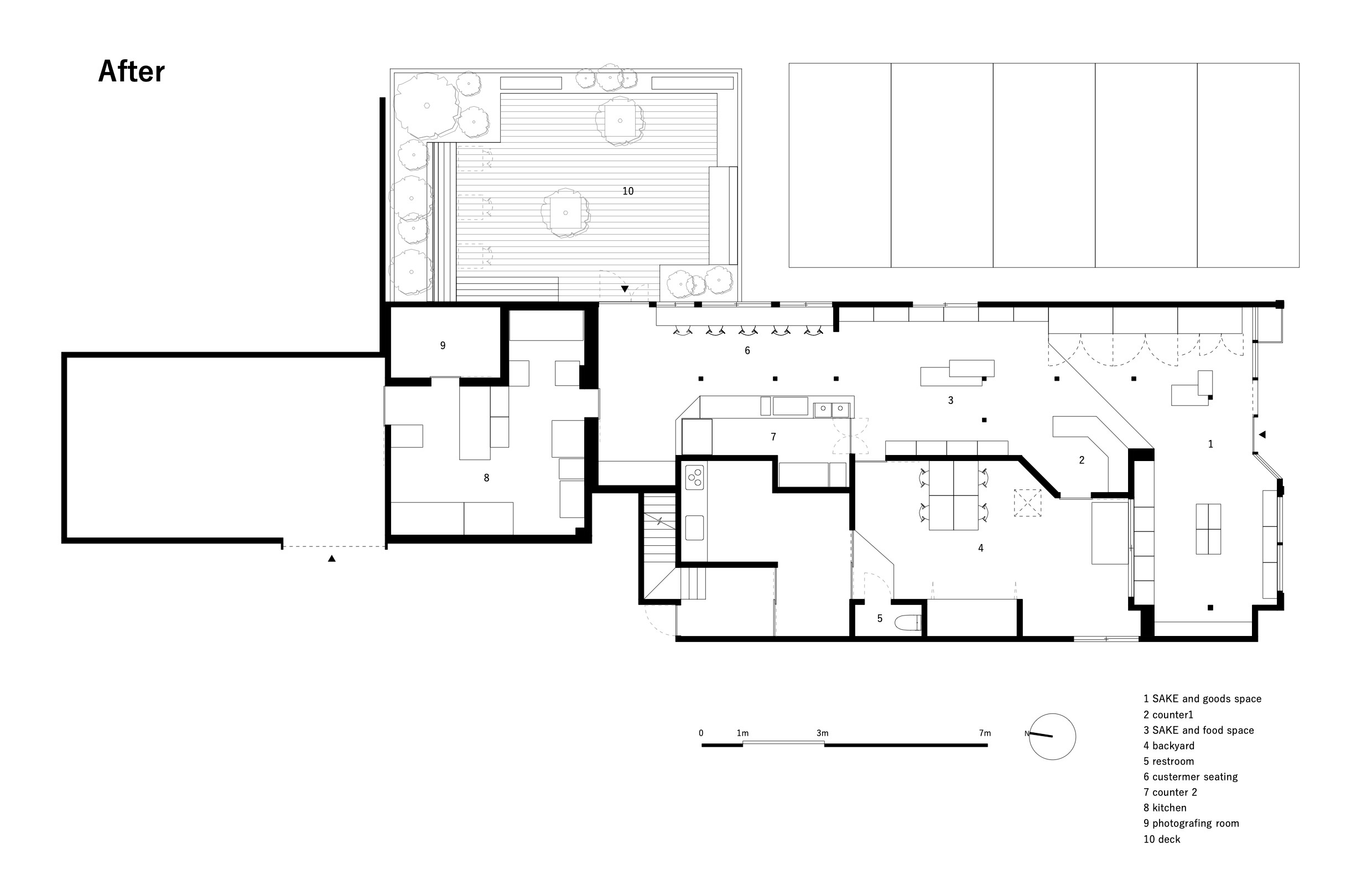
既存の酒屋の改装に加え、新たにケーキスタンドを併設する計画である。酒類の陳列スペースの他に、デザイナーでもある店主が製作したグッズを販売する場所や、ケーキスタンドのイートインスペースが求められたため、奥の倉庫まで店舗を拡張する事とした。既存店舗は間口が狭く閉塞感があったため、手前の酒屋をバックヤード側へ半間広げ、奥のケーキスタンドに新たに出入り口とデッキを設ける事で外からの動線を作り、店舗内を行き来しやすい回遊性のある構成とした。酒屋部分は既存を活かし手を加えず、奥へと続く新規の仕上げを入り込ませる事で、ケーキスタンドへと自然と足が向かうよう工夫した。仕上げの見切りを明確にする事でコストを抑えながら新旧を切り分け、店の象徴となるようなコントラストを持った空間が、新しく訪れる人にとっても、昔から利用していた人にとっても愛着の湧く過去と未来をつなぐ場所となる事を目指した。
Located in Annaka, Gunma, this project involves the renovation of a long-standing liquor store and the integration of a new cake stand. To accommodate a dedicated space for original goods—designed by the owner—as well as an eat-in area, the shop was expanded into the rear warehouse. Addressing the constrained and closed feeling of the original layout, the liquor retail area was widened, while a new entrance and deck were introduced for the cake stand to create a fluid, circular circulation path that invites exploration. The design maintains the integrity of the existing liquor store with minimal intervention, allowing the contemporary finishes of the cake stand to bleed into the original space, naturally drawing visitors toward the rear. By clearly defining the transition between old and new materials, the project achieved a striking contrast while remaining cost-effective. This juxtaposition serves as a bridge between the past and the future, establishing a space that feels familiar to longtime regulars yet fresh and inspiring to new guests.

