
Category :
House in Sanjo
三条の家
Residence: @ Sanjyo, Niigata
Design: Yu Yamada, Mako Shimanuki /SNARK Inc.
Construction: Nakashin House
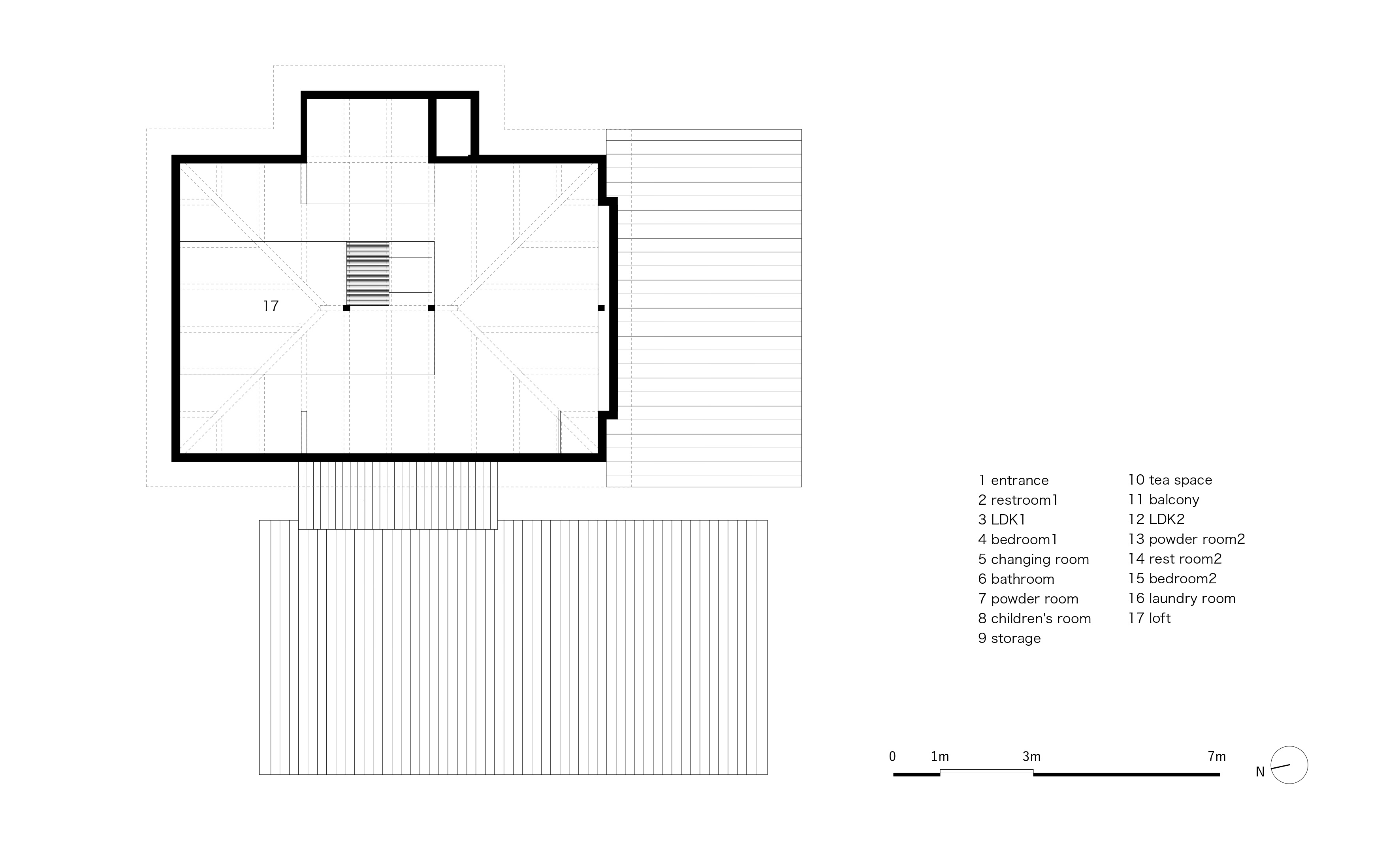
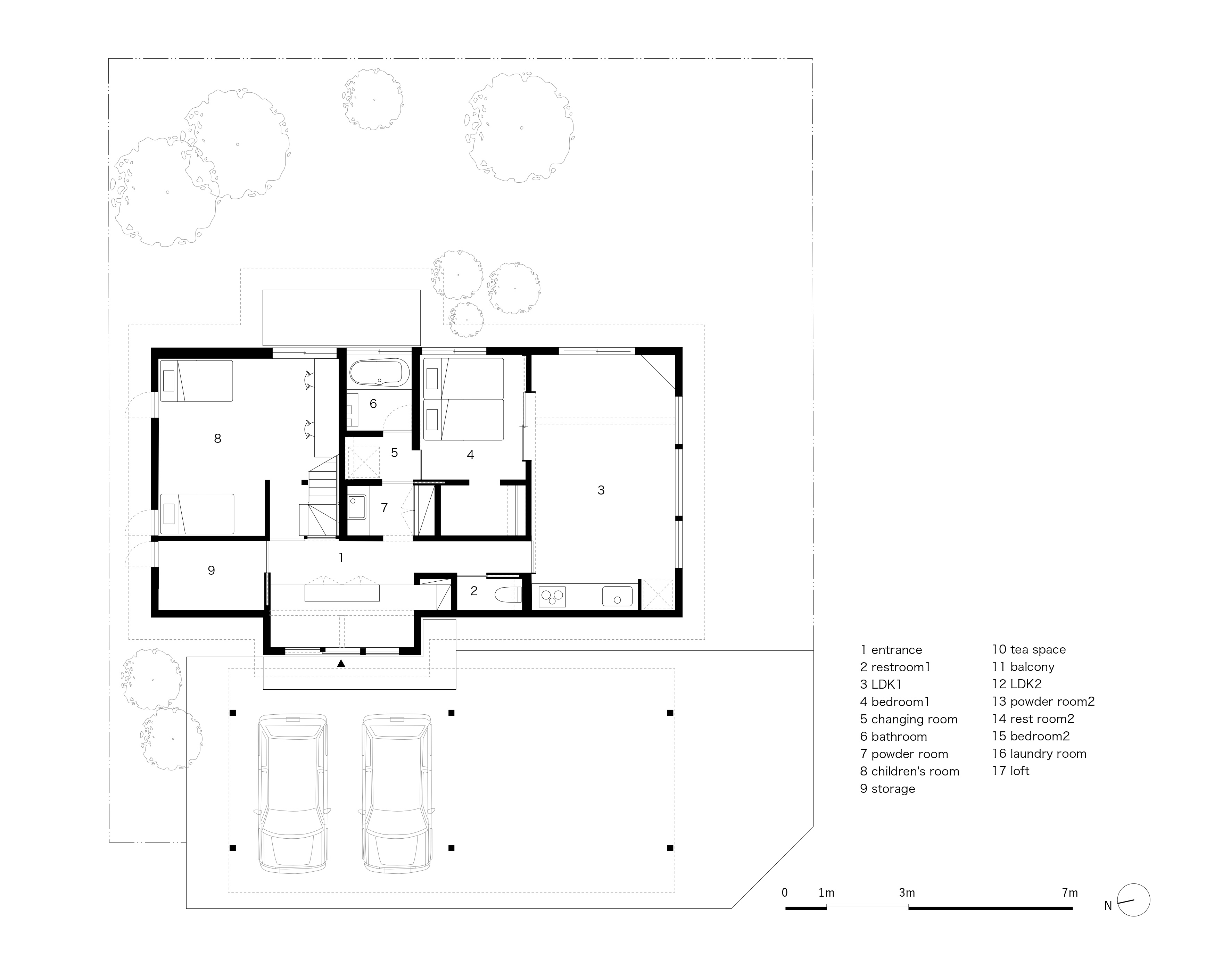
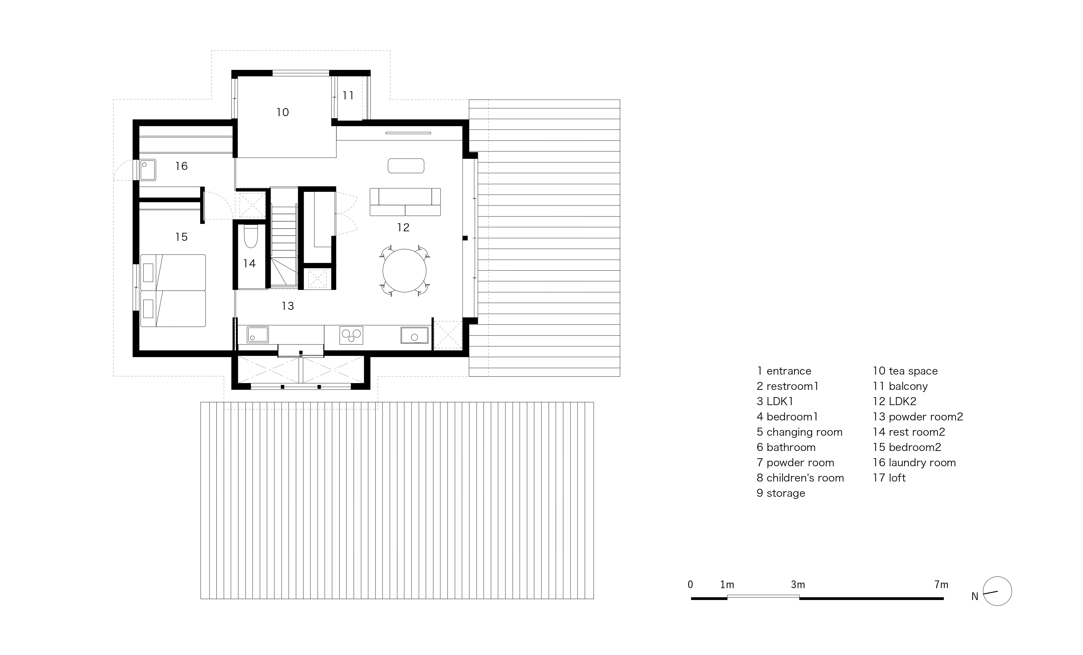
Total area: 148.76㎡ (1F/84.46㎡ 2F/64.3㎡)
Completion: Aug.2022
Photo: Ippei Shinzawa




















新潟県三条市に建つ木造の2世帯住宅である。冬に数回の大雪が降る市街地では主要道路に消雪パイプが張り巡らされ、ほぼすべての家に風除室とカーポートが備わっている。冬の寒さに一番のプライオリティをおき計画された雪国らしい新興住宅街に敷地はある。この地域では宅地化がゆるやかに進んでおり、田んぼと宅地が混ざったのどかな住宅街を形成している。消雪パイプが埋設された西の道路側へカーポートを配置するのは必須であり、カーポートは敷地の一部のように前提条件として与えられているように思えた。周囲の住宅とカーポートの関係を観察すると、カーポートと玄関が近接しているため一階への採光が取れず玄関が暗そうであったり、そうなることを避けるようにカーポートと玄関の距離をとった結果うまく接続できていない建ち方が多い。
ここではカーポートと建物を近づけながら玄関をカーポートの屋根より高い吹き抜けのヴォリュームで配置し、屋根より高い窓から十分な採光と通風を確保するよう計画した。冬は日射により暖められた玄関の空気を、夏はカーポートの日陰により冷やされた空気を室内に導く仕掛けとして吹き抜けの玄関に面した2階の洗面に小窓や、階段室の天井にトップライトへ空気を逃がすルーバーを設けている。2世帯は玄関と浴室を共有するが、それぞれのリビングはお互いに心地よい距離感で生活できるように断面的な重なりを避け、1階親世帯のリビング部分を平屋とし、南側道路に対して親密なスケールを与えている。2階は回遊性のあるワンルームとし様々な生活のシーンが田園風景と共にコアの周りで展開される。整然と並ぶ田んぼの風景に呼応したシンメトリーな立面から庭側へ飛び出した2階の小上がり部分は1階の庭への出入り口の屋根となり、庭との関係を紡ぐ。地域性に応答するための小さな工夫の集まりでできた住宅である。
Located in Sanjo, Niigata, this wooden two-generation residence responds to the distinct environmental demands of Japan’s snow country. In this region, where snow-melting pipes line the streets and carports are a prerequisite for daily life, the design embraces the carport as an integral part of the site’s architecture. The entrance is conceived as a high-volume atrium that rises above the carport roof, leveraging elevated windows to secure ample natural light and ventilation. This atrium acts as a climatic device: in winter, it draws in solar-heated air, while in summer, it brings in air cooled by the shade of the carport. This natural cycle is facilitated by internal openings in the second-floor washroom and louvers in the stairwell that lead to a rooftop skylight.
To ensure privacy within the shared program, the living areas for both generations are sectionally offset. The first-floor parents’ living area is designed as a single-story wing, lending an intimate scale to the southern streetscape. The second floor features an open, circular plan centered around a core, where daily life unfolds against a panoramic backdrop of the surrounding rice fields. Responding to the orderly patterns of the rural landscape, the symmetrical elevation is accented by a protruding volume on the second floor, which serves as a porch roof for the garden entrance below. The house is a synthesis of modest, thoughtful interventions that engage deeply with its regional context.
