
Category :
House in Fujimi
富士見の家
Residence @ Fujimi,Gunma
Design: Shota Kaneko, Sunao Koase / SNARK Inc.
Landscape Design: SNARK Inc.
Planting: AYANAS
Construction: 塚田建設
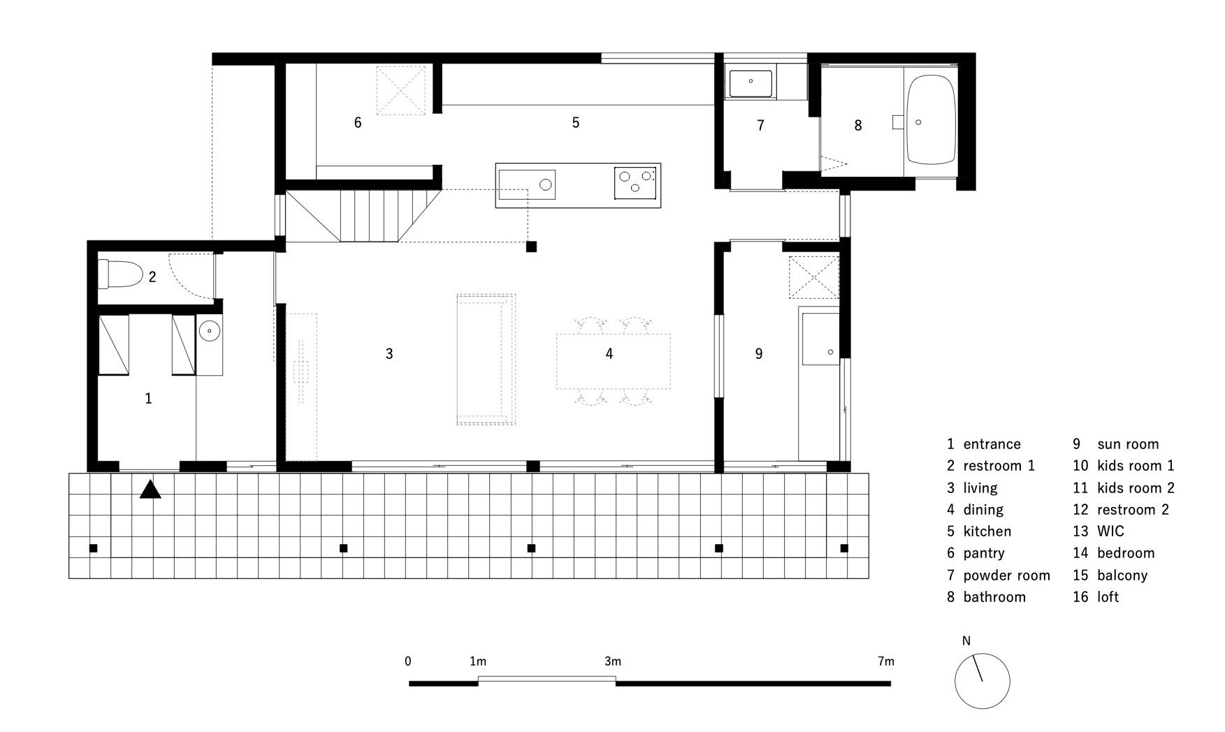
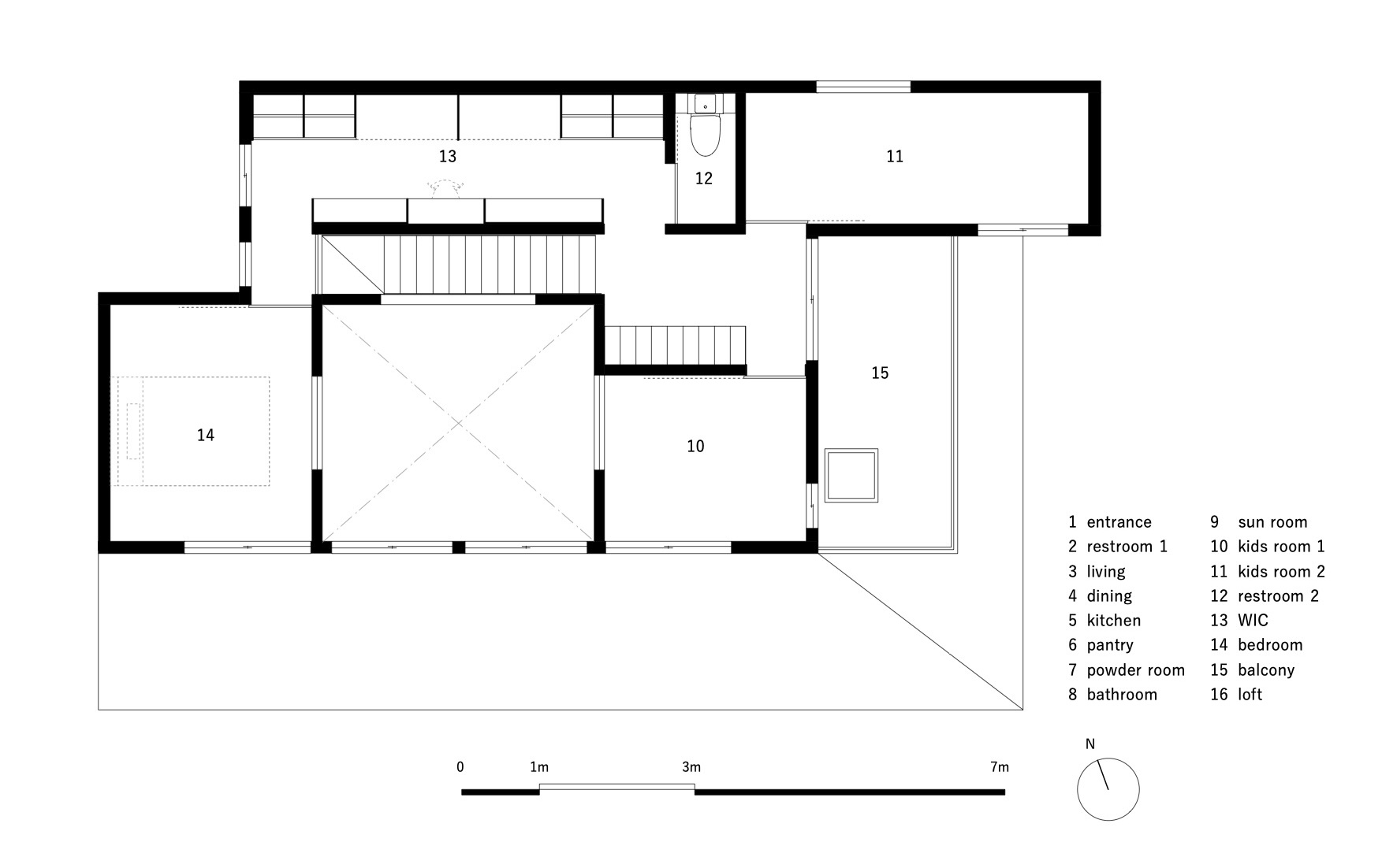
Total area: 95.23㎡ (1F/62.93㎡ 2F/32.30㎡)
Completion: Aug. 2022
Photo: Ippei Shinzawa























群馬県前橋市、赤城山の裾野に建つ木造住宅である。敷地からは赤城山が望めると同時に、山から吹き下ろす厳しい北風への配慮が求められた。建物のボリュームを階段室を境に上下左右にずらし、ハイサイドライトや北側居室への南側窓を設け、建物全体が自然光で満たされる構成とした。ずれたボリュームは2F南側にあるデッキへの季節風を遮る風除けとしても機能している。映像を投影できるよう、吹き抜けにして大きな壁面を確保したリビングを中心に小さな部屋をいくつも配置し、室内に”マド”を設けることでそれらを結びつける構成とした。“マド”はお互いの気配や、奥へと続く空間を覗かせる事で、面積以上の広がりを感じさせ、取り込んだ自然光を他の部屋へと届ける役割も担う。幾重にも重なる開口により生まれるレイヤーが、生活に心地よい距離感をもたらしている。
